- 千葉県の土地情報はe土地net
 
- 土地検索
 
- 木更津市
 
- 千葉県木更津市高柳
 
土地詳細Land Detail


売地更地
千葉県木更津市高柳
価格:1,880万円
※土地情報には上物(築30年以上の中古戸建てなど)ありの場合があります。
 解体には別途解体費用が必要です。物件によっては解体できない場合があります。
 
 
この物件のお支払い例
この土地の支払い例
※上記支払例の借入条件:金利0.700%、
 借入総額1,880万円、借入期間40年
 
 
この土地の支払い例
※上記支払例の借入条件:金利0.700%、
 借入総額万円、借入期間40年
 
 
		新築セットプランお支払い例
	総額:0万円(税込)
	
	
		- 
		
		
		
		 
	
	 
	
		土地+新築プランセット
の支払い例
		※上記支払例の借入条件:金利0.700%、
 借入総額万円、借入期間40年
		
	 
 
 
※新築セットプランの建物価格は参考価格です。土地代金と建物価格以外に、契約事務手数料や外構工事を含む付帯工事費用が必要です。
また、土地の条件によっては、建築できない場合や土地の上物解体費用や造成工事に費用がかかる場合があります。予めご了承ください。
 
この不動産の支払い例
※上記支払例の借入条件:金利0.700%、
 借入総額万円、借入期間40年
 
 
画像
所在地・交通
| 所在地 | 
千葉県木更津市高柳 
 | 
| 最寄駅 | 
内房線 巌根 徒歩 約25分 | 
| 最寄バス停 | 
 | 
| 小学校校区 | 
岩根小/高柳小 | 
| 中学校校区 | 
岩根中 | 
※地図上の「ピンマーク」の位置は「町名」もしくは「丁目」がある場合は「丁目」にマッピングされています。
実際の場所ではございません。
物件概要
| 種目 | 
売地
 | 
| 土地面積 | 
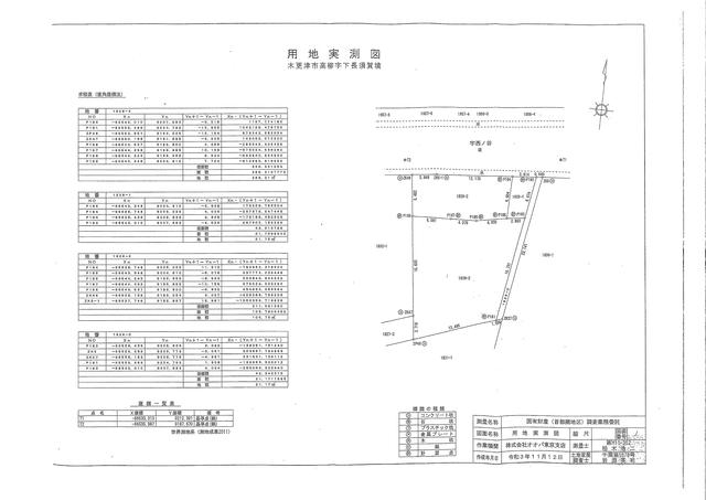
415㎡ | 
| 私道面積 | 
 | 
| 建ぺい率/容積率 | 
60% / 200% | 
| 都市計画 | 
市街化調整区域 | 
| 接道状況 | 
北 幅10m  | 
| 間口 | 
 | 
| 奥行 | 
 | 
| 地目 | 
雑種 | 
| 土地権利 | 
 | 
| 地勢 | 
平坦 | 
| 用途地域 | 
 | 
| 現況 | 
更地 | 
| 条件等 | 
 | 
| 取引態様 | 
仲介 | 
| 種目 | 
売地 | 
| 間取り | 
 | 
| 間取り内訳 | 
 | 
| 土地面積 | 
415㎡ | 
| 私道面積 | 
 | 
| 建物面積 | 
 | 
| 建物構造規模 | 
 | 
| 築年月(竣工月) | 
 | 
| 駐車場有無 | 
 | 
| 建ぺい率/容積率 | 
60% / 200% | 
| 都市計画 | 
市街化調整区域 | 
| 接道状況 | 
北 幅10m  | 
| 地目 | 
雑種 | 
| 土地権利 | 
 | 
| 地勢 | 
平坦 | 
| 用途地域 | 
 | 
| 現況 | 
更地 | 
| 取引態様 | 
仲介 | 
| 種目 | 
売地 | 
| 間取り | 
 | 
| 間取り内訳 | 
 | 
| 土地面積 | 
415㎡ | 
| 私道面積 | 
 | 
| 建物面積 | 
 | 
| 建物構造規模 | 
 | 
| 築年月(竣工月) | 
 | 
| 駐車場有無 | 
 | 
| 建ぺい率/容積率 | 
60% / 200% | 
| 都市計画 | 
市街化調整区域 | 
| 接道状況 | 
北 幅10m  | 
| 地目 | 
雑種 | 
| 土地権利 | 
 | 
| 地勢 | 
平坦 | 
| 用途地域 | 
 | 
| 現況 | 
更地 | 
| 取引態様 | 
仲介 | 
| 種目 | 
売地 | 
| 間取り | 
 | 
| 間取り内訳 | 
 | 
| 専有面積 | 
 | 
| 建物構造 | 
 | 
| バルコニー面積 | 
 | 
| 向き | 
 | 
| 階数 | 
 | 
| 所在階 | 
 | 
| 築年月(竣工月) | 
 | 
| 駐車場有無 | 
 | 
| 駐車場料金 | 
 | 
| 駐車場備考 | 
 | 
| 総戸数 | 
戸 | 
| 管理費 | 
 | 
| 積立金 | 
 | 
| 土地権利 | 
 | 
| 管理形態/方式 | 
 | 
| 用途地域 | 
 | 
| 現況 | 
更地 | 
| 取引態様 | 
仲介 | 
| 種目 | 
売地 | 
| 土地面積 | 
415㎡ | 
| 私道面積 | 
 | 
| 建物面積 | 
 | 
| 建物構造規模 | 
 | 
| 築年月(竣工月) | 
 | 
| 駐車場有無 | 
 | 
| 駐車場料金 | 
 | 
| 駐車場備考 | 
 | 
| 建ぺい率/容積率 | 
60% / 200% | 
| 都市計画 | 
市街化調整区域 | 
| 接道状況 | 
北 幅10m  | 
| 地目 | 
雑種 | 
| 土地権利 | 
 | 
| 地勢 | 
平坦 | 
| 用途地域 | 
 | 
| 現況 | 
更地 | 
| 取引態様 | 
仲介 | 
| 種目 | 
売地 | 
| 間取り | 
 | 
| 間取り内訳 | 
 | 
| 専有面積 | 
 | 
| 建物構造 | 
 | 
| バルコニー面積 | 
 | 
| 向き | 
 | 
| 階数 | 
 | 
| 所在階 | 
 | 
| 築年月(竣工月) | 
 | 
| 駐車場有無 | 
 | 
| 駐車場料金 | 
 | 
| 駐車場備考 | 
 | 
| 総戸数 | 
 | 
| 管理費 | 
 | 
| 積立金 | 
 | 
| 土地権利 | 
 | 
| 管理形態/方式 | 
 | 
| 用途地域 | 
 | 
| 現況 | 
更地 | 
| 取引態様 | 
仲介 | 
取引条件等
その他
| 設備 | 
 | 
| 特徴 | 
 | 
| 諸条件・相談 | 
 | 
| 備考 | 
 | 
| 情報登録日 | 
2025年10月28日 | 
| 情報更新予定日 | 
2025年11月4日 | 
| 物件番号 | 
443503 | 
※物件情報は次回の情報更新予定日までに変更されている場合があります。
この土地に似た土地を
ピックアップしました!